电子远传水表(4G/CAT1大口径垂直螺翼式水表)

电子远传水表(4G/CAT1大口径垂直螺翼式水表)

 
产品型号 LXSG-40~200
产品介绍 4G/CAT1无线远传冷水表系列产品采用干式磁耦合传动,在不拆卸水表的情况下,该表的计量机构可以取出进行维护,产品集中了垂直螺翼式水表的优势,采用全流量检测,被测水流为轴向水流,低进高出,测量精度高,尤其在低流量下,精度高于其他类型水表。产品非常适用于流量变化较大的场合的用水计量,内置不锈钢滤网设计适合中国用水环境,确保了产品长期稳定的工作。
功能特点
技术指标和型号
安装和接线
产品符合标准
  功能特点
  • 采用可拆式机芯结构,具有维修方便,读数直观、计量准确等特点。

  • 不同口径,不同机芯,全流量检测,测量精度高。

  • 量程宽,适合流量变化较大的场合。

  • 调节机构内置式结构,有效防止私自调表。

  • 高耐磨性轴承系统确保产品的长期稳定性和可靠性,明显提高了产品的最大流量。

  • 整体性能全面优于LXS旋翼式水表。

  • 采用行业先进热喷涂工艺,最大限度提高表壳抗腐蚀能力,延长使用寿命。

  • 可选配防撬保护外罩。

  • 安装时无需在表前表后安装直管段。

  • 磁传铜封干式结构,保证整洁,显示清晰,防护等级达到IP68。



   型号功能对照表
型号
口径功能代码功能
LXSG-40~200

DN40、DN50、DN65、

DN80、DN100、DN150、

DN200

Z(4G/CAT1)光电直读水表(冷水、4G/CAT1无线通讯)
RZ(4G/CAT1)光电直读水表(热水、4G/CAT1无线通讯)
ZC(4G/CAT1)

光电直读水表(冷水、带阀控、4G/CAT1无线通讯)

RZC(4G/CAT1)

光电直读水表(热水、带阀控、4G/CAT1无线通讯)

例:LXSG-40 ZC(4G/CAT1) 表示 DN40口径 ,冷水、光电直读、带阀控、4G/CAT1无线通讯。

       LXSG-40 RZC(4G/CAT1) 表示 DN40口径 ,热水、光电直读、带阀控、4G/CAT1无线通讯。


   技术参数
公称口径DN(mm)40506580100150200
过载流量Q4(m³/h)31.25505078.75125312.5500
常用流量Q3(m³/h)25404063100250400
R=Q3/Q1160、200(可选)
量程比Q2/Q1=1.6      Q4/Q3=1.25
计量单位立方米(m³)或升(L)
环境温度-15°C~55°C
环境相对湿度<90%。
环境湿度(0-95)%RH
温度等级冷水T30    热水T90
环境等级B级
电磁环境等级E1级
准确度等级2级
水压≤1.0Mpa
水质自来水、直饮水、生活热水
工作电源DC 12V
通讯方式4G/CAT1
显示方式机械累计显示
通讯传输速率1200~9600 bps




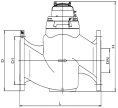
   安装尺寸

公称口径

DN

(mm)

连接法兰
LBH

法兰外径

D

螺栓孔中心

圆直径D1

连接螺栓
mm 公差:士 1
40245145220G2”
502801652281651254×M19
653001852381851454×M19
803702002902001604/8×M19
1003702203062201808×M19
1505002854452852408×M23
2005003405643402958/12×M23



尺寸图1.png


尺寸图2.png


垂直螺翼可折干式水表外型图



   产品符合标准

GB/T 778-2018《饮用冷水水表和热水水表》

CJ/T 224-2012《电子远传水表》

JJG 162-2019《饮用冷水水表检定规程》

JJG 686-2015《热水水表检定规程》

CJ/T 188《户用计量仪表数据传输技术条件》

DL/T 645《多功能电能表通信协议》

Modbus-RTU通讯规约